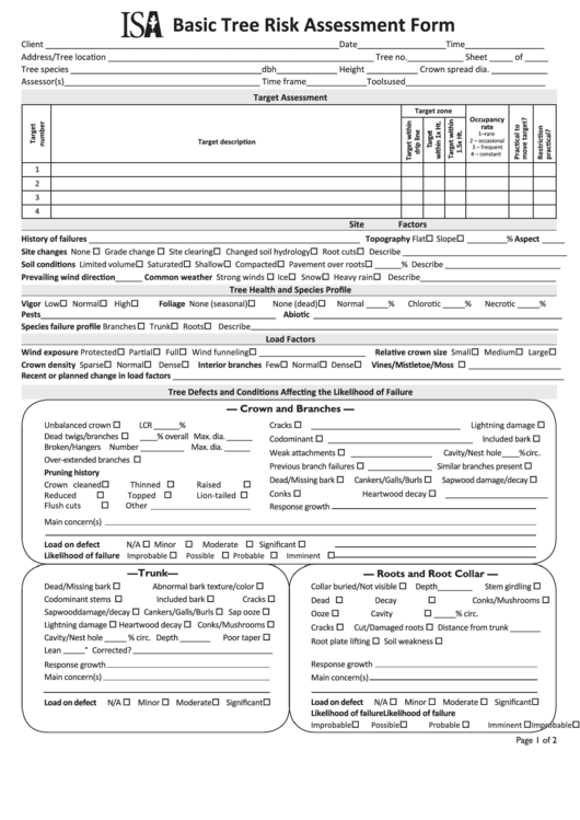
When it comes to managing trees on your property, it is important to conduct regular risk assessments to ensure the safety of your surroundings. One way to do this is by utilizing a printable tree risk assessment form. This form allows you to systematically evaluate the health and condition of your trees, identifying any potential hazards that may pose a risk to people or property.
By using a tree risk assessment form, you can document important information such as tree species, location, size, and overall health. This information can help you make informed decisions about whether a tree needs to be pruned, removed, or monitored for any signs of decay or disease. It also serves as a valuable tool for tree care professionals to create a comprehensive tree management plan for your property.
Printable Tree Risk Assessment Form
When filling out a printable tree risk assessment form, be sure to carefully inspect the tree for any visible signs of damage, disease, or structural defects. Look for cracked branches, leaning trunks, hollow cavities, or any other abnormalities that could indicate a potential risk. Assess the tree’s proximity to structures, power lines, or high-traffic areas to determine the level of hazard it may pose.
Once you have completed the assessment, prioritize the trees based on their level of risk. Trees that exhibit severe hazards should be addressed immediately, while those with minor issues may require regular monitoring or maintenance. Use the information gathered from the assessment form to develop a proactive tree care plan that addresses any potential risks and ensures the safety of your property.
Regularly conducting tree risk assessments and using a printable form to document your findings is essential for maintaining a healthy and safe environment. By staying proactive in your tree care efforts, you can prevent potential accidents or property damage caused by unstable or hazardous trees. Remember to consult with a certified arborist or tree care professional if you have any concerns about the condition of your trees or need assistance in managing potential risks.
In conclusion, a printable tree risk assessment form is a valuable tool for property owners to assess the health and safety of their trees. By utilizing this form and conducting regular assessments, you can identify and address potential risks before they escalate into serious issues. Taking proactive steps to manage tree hazards will not only protect your property but also contribute to the overall health and longevity of your trees.
